Корзина
ОформитьПолуавтомат круглошлифовальный бесцентровой 3Е183
Станок бесцентровошлифовальный 3Е183 предназначен для шлифования тел вращения с диаметром заготовок от 1,2 до 40 мм при обработке на проход и при обработке врезанием. Допускаемый диаметр устанавливаемого изделия на полуавтоматах 3Е183В и 3Е183А до 40 мм.
Полуавтомат 3Е183 обеспечивает автоматические циклы:
- врезного шлифования с функциональной подачей;
- правки шлифовального круга;
- компенсации размера обрабатываемой детали;
- компенсации положения алмаза относительно образующей шлифовального круга.
Для осуществления врезного шлифования на полуавтомате предусмотрена установка загрузочного манипулятора УЗ1-560, налаженного на загрузку деталей диаметром 27—40 и длиной до 245 мм.
Для загрузки деталей разнообразной конфигурации, диаметры и длины которых отличны от указанных в паспорте полуавтомата, конкретное загрузочное устройство и наладки завод изготовляет по особому заказу.
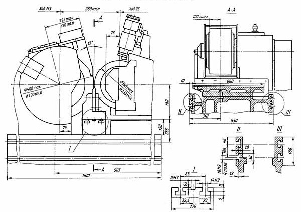
Бабка шлифовального круга и бабка ведущего круга подвижны. Суппорт и опорный нож неподвижны. Бабку ведущего круга можно установить в горизонтальной плоскости под углом ±30°, а наибольший угол наклона оси ведущего круга в вертикальной плоскости ±8°. Шлифовальная бабка установлена на роликовых направляющих со стальными закаленными планками. Боковые направляющие также роликовые. Бабка ведущего круга установлена на направляющих скольжения.
Класс точности станков по ГОСТ 8—82Е: мод. 3Е183В — В; мод. 3Е183А — А.
Принцип работы и особенности конструкции станка:
- Шлифование со сквозной подачей (напроход)
Для работы этим методом ось ведущего круга устанавливают в вертикальной плоскости относительно оси шлифовального круга под углом α до 4°.
В процессе шлифования оси обоих кругов и нож неподвижны. По мере износа кругов их перемещают относительно друг друга на величину износа.
Материал ведущего круга вследствие высокого коэффициента трения обеспечивает хорошее сцепление ведущего круга со шлифуемой заготовкой. Поэтому установленный под углом α и вращающийся с окружной скоростью v ведущий круг сообщает заготовке круговую подачу с окружной скоростью vо=v cosα м/мин и продольную подачу со скоростью vп=v sinα м/мин.
Действительная окружная скорость v′о под влиянием дополнительного вращения заготовки шлифовальным кругом несколько больше теоретической vо: v′о=(1,02..1,07) vо (в зависимости от угла α).
Процесс шлифования может быть непрерывным, поэтому бесцентрово-шлифовальные станки удобно использовать в поточных и автоматических линиях.
- Шлифование с поперечной подачей (на врезание)
Этим методом пользуются при шлифовании заготовок с фасонным, коническим или иным, отличным от цилиндрического профилем, а также при шлифовании цилиндрических заготовок с буртом или какой-либо выступающей частью, диаметр которой больше диаметра шлифуемой поверхности.
При работе методом врезания оси кругов располагают горизонтально, заготовку помещают между ножом и ведущим кругом. Шлифование поверхности ведется одновременно по всей длине за счет поперечной подачи шлифовального (или в некоторых станках ведущего) круга. В конце поперечной подачи изделие имеет заданный размер.
Профиль обоих кругов правится в соответствии с профилем шлифуемой заготовки. Длина обрабатываемой поверхности не может быть больше ширины шлифовального круга.
Шлифование со сквозной подачей до упора. Этим методом пользуются для шлифования цилиндрических поверхностей заготовок с буртом или конических поверхностей. Осевое перемещение заготовки ограничивается упором, который после окончания обработки выталкивает ее.
- Шлифование продвижным методом
Характерной особенностью этого метода является движение опорного ножа вместе с заготовкой в процессе ее обработки. Для перемещения ножа используют специальное приспособление, которое устанавливают на опорный мостик.
Этот метод применяют вместо шлифования со сквозной подачей до упора, когда продольную подачу и отвод изделия удобней осуществлять с помощью опорного ножа.
Габарит рабочего пространства станка

Посадочные и присоединительные размеры

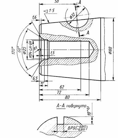
Шпиндель шлифовального круга

Абразивный круг и планшайба

Планшайба ведущего круга
Характеристики
- Вид товара Бесцентрово-шлифовальные станки
- Врезное шлифование, мм 155
- Масса станка, кг 4580
- Мин./макс. число оборотов при шлифовании, min-1 15/150
- Окружная скорость, м/с 35
- Параметры ведущего круга (D наруж. / d посад. / B), мм 300х160х127
- Параметры шлифовального круга (D наружн. / d посадочн. / B), мм 400х160х203
- Угол наклона бабки ведущего круга в верт. плоскости, град +/- 8
- Число оборотов при правке, min-1 300
- Шлифование на проход (стандартное исполнение), мм 170
Обрабатываемая деталь
- Диаметр шлифования, мм 40
Перемещение рабочих органов
- Дискретность мин. подналадочных перемещений, ткт +/-1
Электрооборудование
- Мощность главного привода, кВт 11
- Потребляемая мощность (суммарная), кВт 17,6
- Уточняйте у менеджера
- Артикул: 3Е183
Возможно вам будет интересно
Мы быстро реагируем на запросы потребителей и осуществляем комплектацию и отгрузку продукции по всей России и СНГ
Офисы продаж в регионах
Официальный интернет магазин компании ПМ техно в Москве. Продажа станков, инструмента, оснастки по всей России. © 2025



